
适用专业/行业
建筑/室内设计
核心价值
- 自动化重复性任务,加快项目进度
- 利用AI精度减少错误,保持项目标准统一
- 解放资源,专注于创新建筑解决方案
功能一览
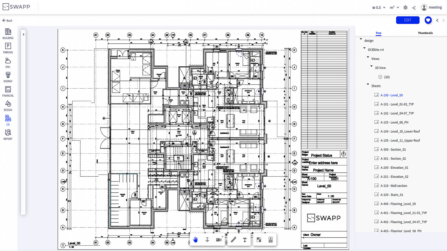
- 即时生成注释:自动对各种项目元素进行尺寸标注和标记。
- 自动排列:根据公司标准调整所有注释,确保文档的美观和易读性。
- 简化迭代:支持项目迭代和设计变更,管理整个项目生命周期中的连锁反应。
- 有组织的文档集:创建所有视图和图纸,并根据设计阶段和公司标准进行组织。
- 自动 2D 转 3D 建模:将方案线稿自动生成包含墙体、门、家具、设备等要素的楼层模型,并按事务所规则自动打包到分组与 Worksets,提升模型秩序与协作效率。
- 自动饰面建模:依据建筑师定义的 finish-style 表自动应用饰面做法,保证材料应用一致性与准确性,减少返工与错误。
- 参数重排优化工作流:自动重排(reorder)参数以优化模型组织结构,提升模型可用性并加速后续出图/文档流程。
- 自动化项目参数配置:从参考文件自动提取模型参数并应用到新项目,减少手工录入与差错,加快项目启动。
- 建模质量校验:对模型与文档集进行校验,识别偏离事务所标准的差异与不规范做法,用于质量控制与一致性保障。
关联技术
机器学习、LLM、BIM
适用阶段
设计阶段/施工阶段
适用项目类型
通用类型
付费方式
需咨询报价
产品价格
根据项目规模和复杂度计算
可用性
大陆可用
产品形态
网页/插件
兼容与集成
Revit
开发者信息
公司/团队名称
Swapp
总部所处国家
以色列
人数规模
中(11-100人)
0:00
/1:00





